Straight Side Knuckle Joint Press, 40-220 ton
MARX Series Mechanical Presses
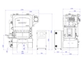
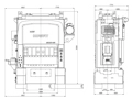
The straight side knuckle joint press is a high-performance metal stamping press engineered for ultra-precision forming applications. With a stroke range of 16 to 40 mm and speeds reaching up to 1000 strokes per minute, it offers multiple tonnage options from 40 to 220 tons, meeting diverse production requirements.
Built with a balanced mechanical system of 2 guide posts and 8-way slide guiding for a tight running clearance, the press ensures accuracy, rigidity, and operational stability during high-speed stamping operations.
- The knuckle joint design maximizes forming force at the bottom dead center while maintaining excellent structural rigidity and heat stability.
- The fully opposed balancing system minimizes displacement caused by SPM variation, ensuring consistent die height and stable bottom dead center position during continuous operation.
- The dual-column, eight-surface needle guide system features paired linear rails on both sides, increasing the slide’s resistance to eccentric loads for greater stamping precision.
- Equipped with a new backlash-free clutch/brake unit that enables operation with low-noise and extended service life.
- Includes servo-controlled die-height setting with memory function, reducing setup time and improving production efficiency.
Lead frame stamping
Automotive terminal stamping
IC chip stamping
Rotor and stator lamination stamping
Electrical cabinet
Worktable
Solenoid valve
Motor drive
Feeding inlet
Feeder
Locking pump and lubrication hydraulic pump
Compressed air storage tank
Pneumatic and hydraulic pressure gauge
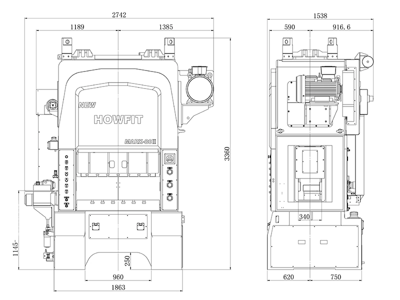
Note: the above specifications are based on customer-provided data. Certain parameters such as shut height, stroke range, bed opening and strap hole size can be customized according to customer’s process or drawing requirements.
Continuously delivers metal coil in precise steps to the press or processing equipment during stamping operations

Used for uncoiling and recoiling sheet metal from coils, ensuring a smooth and steady material feed

Flattens uneven sheet or strip material by passing it through upper and lower rollers to achieve the required flatness

Collects and removes scrap generated during the stamping process to maintain clean and efficient operation
A South Korean client, previously relying on Japanese presses, tested our 80-ton knuckle joint press for stamping T-type rotors and stators. After experiencing its performance and cost efficiency, the client gradually expanded production with additional HOWFIT machines and now uses them as their primary metal stamping equipment line.
A Dongguan-based customer selected our 80-ton knuckle joint press for producing IC terminals. Its high precision and stability make it especially suitable for delicate electronic components. The client was impressed by the accuracy and forming consistency provided by the metal stamping press, leading to long-term cooperation.
A Chinese client specializing in square pin terminal production for export to Europe and the U.S. chose our 50-ton knuckle joint press equipped with dual feeders. The high speed, precision, and reliability of the straight side joint press met the strict requirements of their stamping process.

















